Neubau Feuerwehrhaus
Walzbachtal
Daten und Fakten
Bauort: Walzbachtal
Bruttoraumvolumen: 2.550 m³
Nettogrundfläche: 510m²
Unsere Leistungen: Entwurf, Gesamtplanung und Bauüberwachung
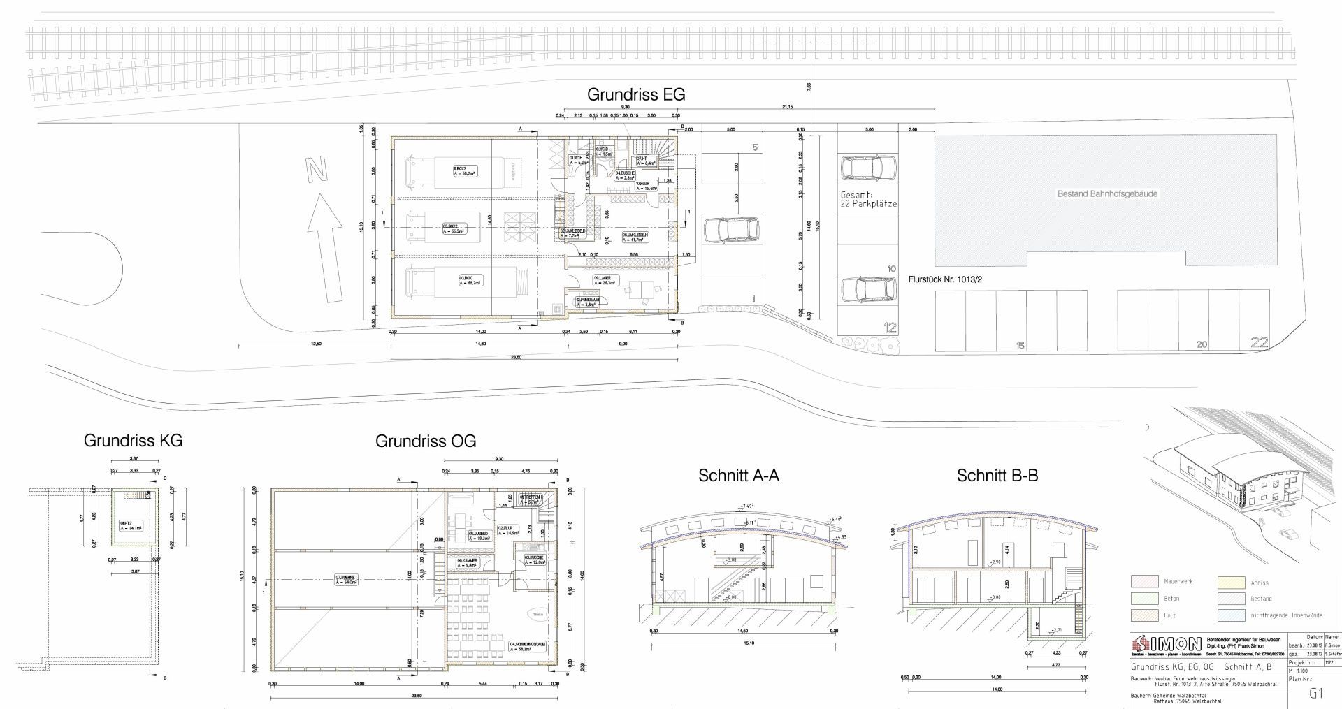
Beschreibung
Man kann CO2 in 1000m Tiefe in den Meeresgrund pressen, in die Luft pusten und damit die Erde erwärmen, oder man verbaut diesen Stoff einfach in langlebige Bauwerke und trägt damit zur Entlastung der Atmosphäre bei.
Für Letzteres hat sich die Feuerwehr Walzbachtal bei der Planung ihres neuen Stützpunktes in Wössingen entschieden. Hinsichtlich der positiven Auswirkung auf die CO2-Bilanz liegt der Einsatz von Holz in langlebigen Wirtschaftsgütern bekanntlich auf Platz 2 hinter der Aufforstung.
Auf dem ehemaligen Gelände der Güterhalle am Bahnhof Wössingen entstand während der letzten Monate ein neues Feuerwehrhaus für die Abteilung Wössingen. Geplant, konstruiert und überwacht von dem ortsansässigen Ingenieurbüro des Bauingenieurs Frank Simon, unter dem Bauherrn und Betreiber der Gemeinde Walzbachtal, entstand das neue Gebäude mit Platz für 3 Feuerwehrfarzeuge und die notwendigen Funktionsräume der Abteilung Wössingen. Hierzu gehören neben Umkleide- und Sozialräumen auch ein Seminarraum und Räume für die Jugendarbeit im Obergeschoss.
Die unmittelbare Nähe zu dem denkmalgeschützten Bahnhof war der Ausgangspunkt für die Gestaltung des neuen Gebäudes. Anstatt die Form oder die Fassade des Bahnhofs aufzunehmen versuchte der entwerfende Ingenieur mit einer eher funktionalen technischen Form die gebührende Distanz zu dem ehrwürdigen und massiven Bahnhofsgebäude zu waren. In Analogie zu einer Lokomotive mit gestreckter Motorhaube und verglastem Führerhaus entstand schließlich ein hochgeschossiger Hallenkörper für die Fahrzeuge und ein durch Oberlichter abgesetzter höherer zweigeschossiger Baukörper für die Funktionsräume. Beide Baukörper werden jeweils oben durch ein Segmentbogendach abgerundet. Auf einer massiven Bodenplatte mit Sockelaufkantungen wurde die Halle als Holzskelett mit gedämmten Leichtmetallelementen und der Funktionsbau als moderner verputzter Holztafelbau errichtet. Zwei hölzerne Fachwerkträger mit Zwischendecke als Lagerraum bilden das Haupttragwerk der Halle. Die hochwärmegedämmte Gebäudehülle mit nach Süden ausgerichteter Breitseite ermöglichte den Einsatz einer strombetriebenen Luftwärmepumpe. Bestückt mit der entsprechenden Fotovoltaikanlage ist es in Zukunft möglich mit diesem Gebäude in der Jahresbilanz einen Energieüberschuss zu produzieren. Innerhalb des Bruttoraumvolumens von 2550 Kubikmeter entstand eine Nettogrundfläche von 510 Quadratmeter. 10 Parkplätze und die Aufstellfläche der Feuerwehr von 215 m² entstanden im Außenbereich. Die Gebäudehülle wurde im Passivhausstandard ausgeführt.
Mit der geplanten Investitionssumme von 950.000 € konnte der Bau von März 2013 bis Oktober 2013 errichtet werden. Unabhängige Architektur - und Ingenieurleistung aus einer Hand, Ausschreibung in Einzelgewerken und die Ausführung durch leistungsfähige regionale Firmen haben hier ein individuelles Bauwerk mit hohem Gebrauchswert ermöglicht. Zeit- und Kostenrahmen konnten eingehalten werden.










